Image Gallery
Description:
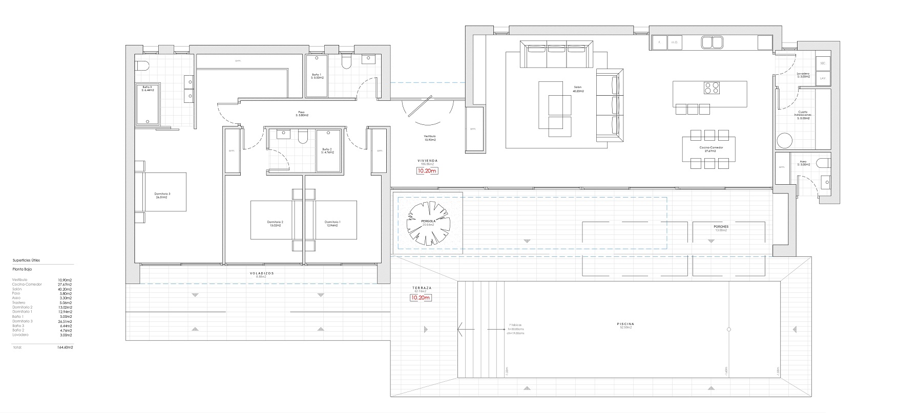
This villa is currently under construction in Calpe and offers a spacious and modern living environment. It spans a plot size of 800 m2. The built area measures 249 m2, with 165 m2 dedicated to the house itself. The villa offers an expansive living room area of 68 m2, perfect for relaxation and gatherings. There is also a delightful terrace covering 63 m2, ideal for enjoying the sunny Spanish climate. The villa features three bedrooms and four bathrooms, all designed with comfort in mind. The luxury kitchen is open plan, equipped with some appliances, and is sure to meet your culinary needs. Heating and cooling are provided by air conditioning to ensure optimal comfort throughout the year. An optic fiber internet connection is available. Outside, the private garden and pool view create a serene atmosphere, alongside the private swimming pool, enhancing the outdoor living experience. Communal features were not specified, but the property provides ample private amenities. With proximity to various micro-locations, including a golf resort nearby, this villa in Calpe promises a well-rounded lifestyle.

Features:
- Floor:
- Property Type: Villa
- Status: Active
- Year of Construction: 2025
- Bedrooms: 3
- Bathrooms: 4
- Built Area: 249m2
- Living Area: 165m2
- Terrace Area: 63m2
- Rooftop Terrace Area:
- Plot area: 800m2

Details:
- Living Room Area: 68m2
- Property Segment: New Buildings
- Air Conditioning:
- Flooring: Ceramic tiles
- Garden: Private
- Heating Type: Airconditioning
- Swimming Pool: Private
- Parking Area:
- View: Pool
- Community Fees:
- Listing Type: Sale
Scroll to Top