Image Gallery
Description:
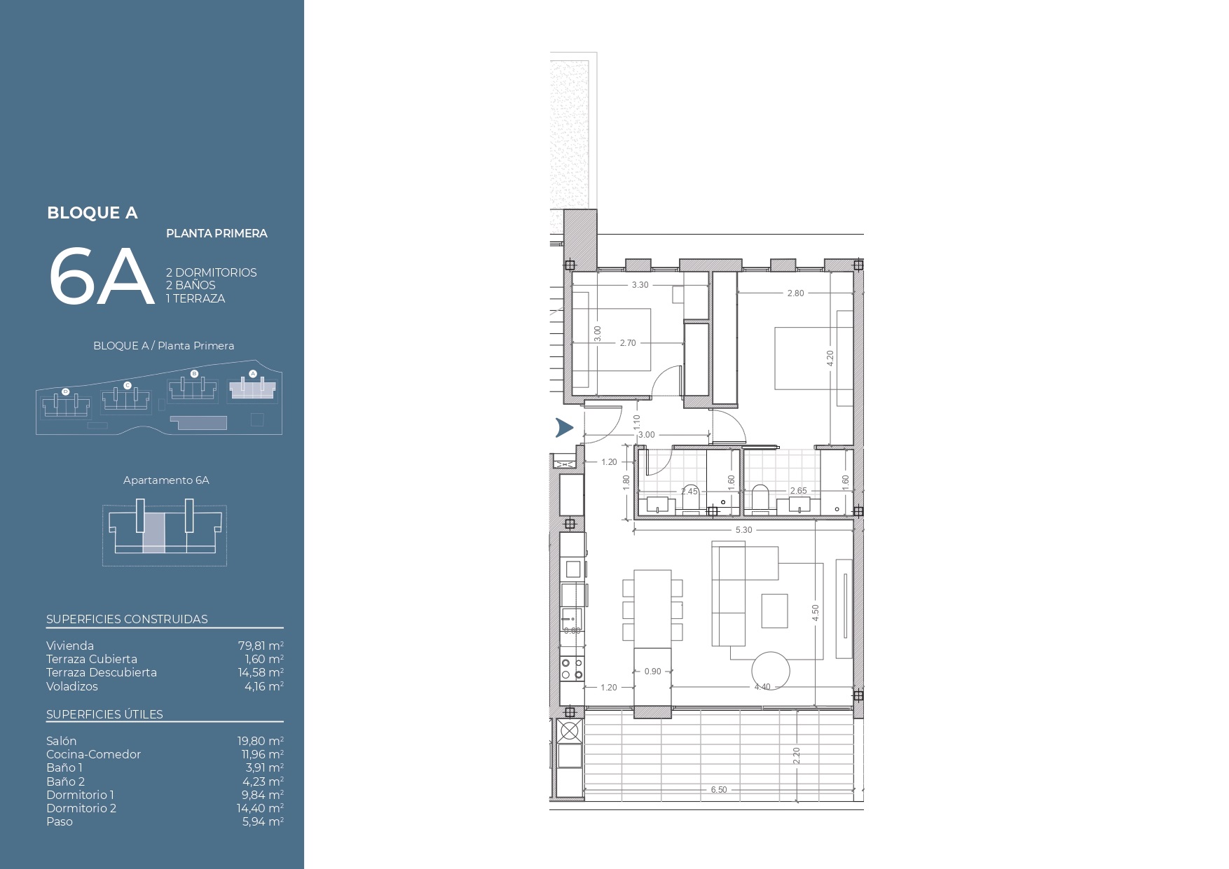
This new apartment is located in La Nucia, with restaurants and shops within walking distance. The property has a built area of 80m2, with a house area of 64m2, including a 32m2 living room. It also features a 16m2 terrace. The apartment has 2 bedrooms and 2 bathrooms. The open plan kitchen comes with some appliances. The property has optic fiber internet connection and offers a view of the pool. The bathrooms have underfloor heating and there is pre-installation for air conditioning. The apartment comes with an underground parking space. The communal features of the property include a gym, an adults pool, an indoor pool, and a Turkish sauna.

Features:
- Floor: 1
- Property Type: Apartment
- Status: Active
- Year of Construction: 2024
- Bedrooms: 2
- Bathrooms: 2
- Built Area: 80m2
- Living Area: 64m2
- Terrace Area: 16m2
- Rooftop Terrace Area:
- Plot area:

Details:
- Living Room Area: 32m2
- Property Segment: New Buildings
- Air Conditioning:
- Flooring: Ceramic tiles
- Garden: Comunal
- Heating Type: Bathrooms with under floor heating;Airconditioning
- Swimming Pool: Comunal
- Parking Area: Underground parking space
- View: Pool
- Community Fees:
- Listing Type: Sale
Scroll to Top