Image Gallery
Description:
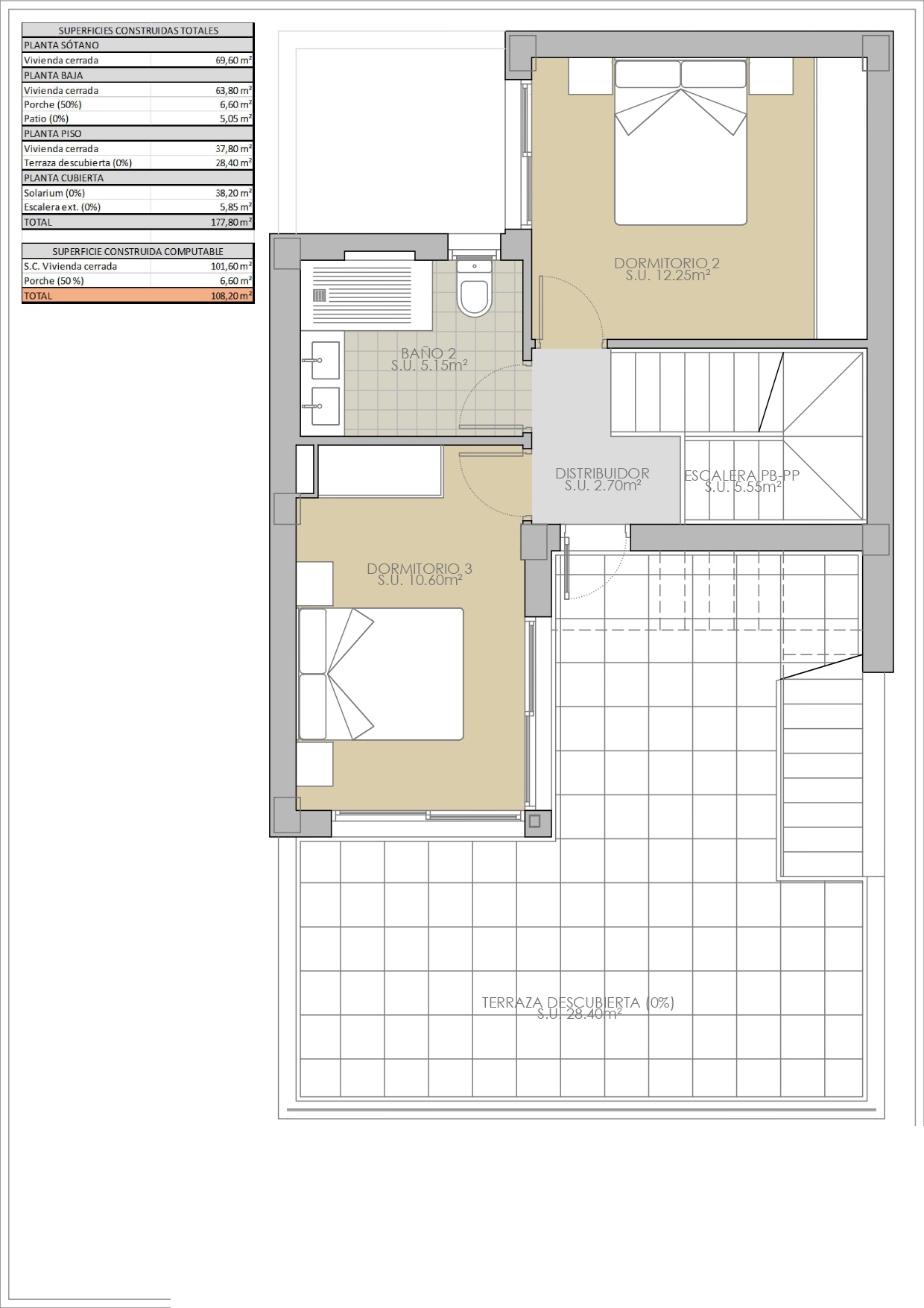
This semidetached property, currently under construction in Rojales, offers an enticing blend of luxury and convenience. With a private swimming pool measuring 2.5x4.5, the property features a spacious living room area of 31 m2, contributing to a total house area of 108 m2. The terrace, covering 28 m2, and the included basement of 59 m2, provide additional space and functionality. Situated just a 10-minute drive from the beach, the property allows for easy access to sandy shores. Restaurants and shops are conveniently within a 2-minute walking distance, while the proximity to a golf resort adds to the allure for enthusiasts of the sport. The property comprises three bedrooms, two bathrooms, and a guest toilet, with underfloor heating providing warmth in the bathrooms and air conditioning pre-installed for comfort. The luxurious kitchen is equipped with some appliances included, promising a modern and functional cooking space. The surrounding garden ensures tranquility and respite, enhancing the property's appeal. Moreover, an airport is conveniently located within a 30-minute drive, allowing for easy travel. The medical center is just 10 minutes away, ensuring essential amenities are within reach.

Features:
- Floor:
- Property Type: Semidetached
- Status: Active
- Year of Construction: 2026
- Bedrooms: 3
- Bathrooms: 2
- Built Area: 167m2
- Living Area: 108m2
- Terrace Area: 28m2
- Rooftop Terrace Area:
- Plot area: 125m2

Details:
- Living Room Area: 31m2
- Property Segment: New Buildings
- Air Conditioning:
- Flooring: Ceramic tiles
- Garden: Private
- Heating Type: Bathrooms with under floor heating;Airconditioning
- Swimming Pool: Private
- Parking Area:
- View:
- Community Fees:
- Listing Type: Sale
Scroll to Top